
Sie möchten Ihr Business auf den nächsten Level heben und suchen dafür die passenden Räumlichkeiten?
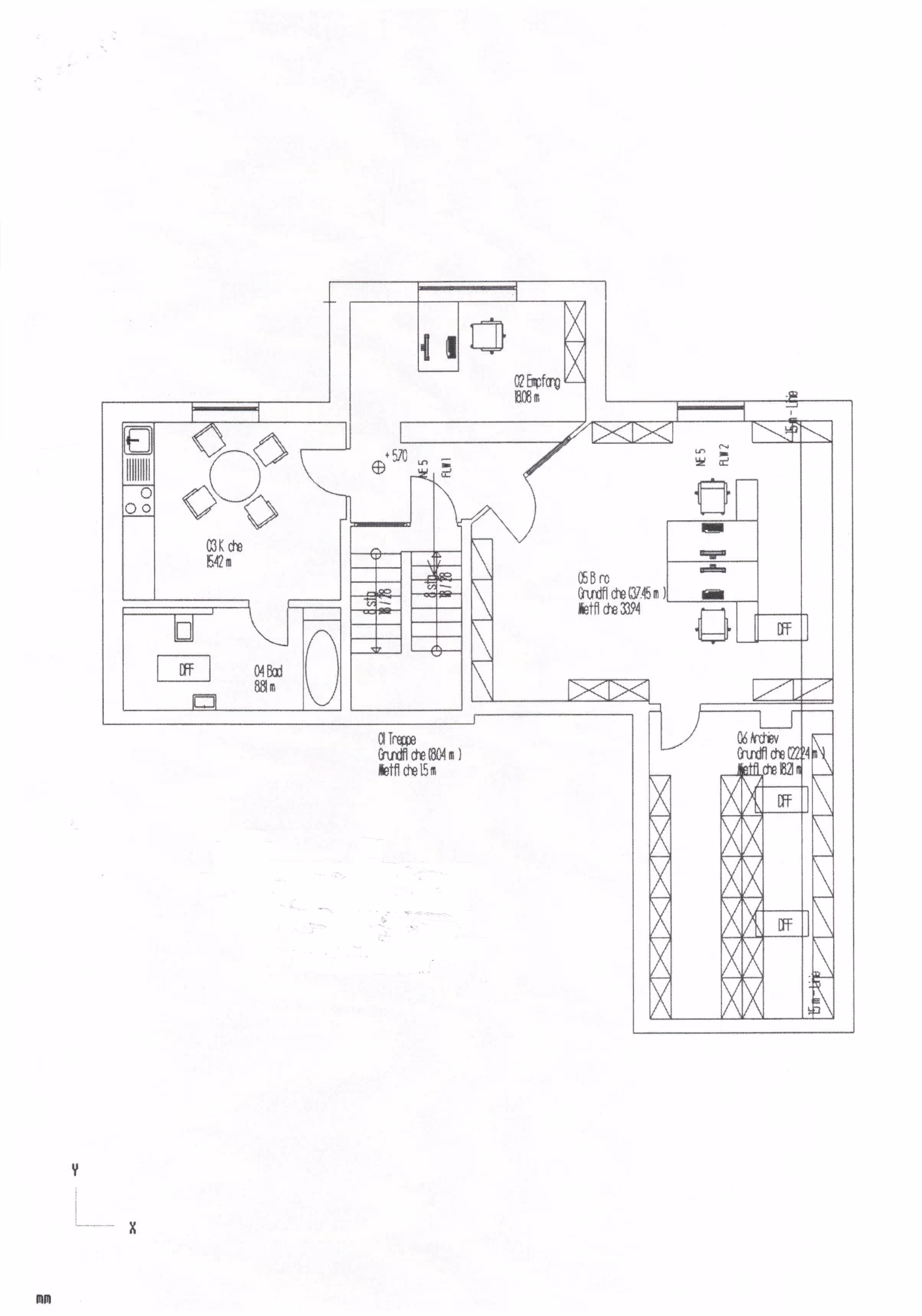
Diese lichtdurchflutete Bürofläche in Georgensgmünd besticht durch ihre moderne und ansprechende Gestaltung. Sie verfügt über drei separate Zimmer, eine Küche sowie ein Badezimmer mit Badewanne und WC. Der Bodenbelag besteht aus hochwertigen, modernen Fliesen, die den Räumen ein elegantes Ambiente verleihen.
Die Räume bieten dank ihrer großzügigen Fensterflächen viel Tageslicht und schaffen eine angenehme Arbeitsatmosphäre. Die Bürofläche eignet sich ideal für verschiedene Nutzungsmöglichkeiten, wie zum Beispiel:
Aufgrund der durchdachten Raumaufteilung und die moderne Ausstattung bietet diese Fläche beste Voraussetzungen für ein produktives und inspirierendes Arbeiten.
Zu der Bürofläche stehen 3 Stellplätze zur Verfügung welche jeweils zusätzlich mit € 20,00 berechnet werden.
Bei Interesse stehen wir Ihnen gerne für weitere Informationen oder eine Besichtigung zur Verfügung!
Georgensgmünd ist eine wirtschaftlich aufstrebende Gemeinde mit sehr hohem Freizeitwert und liegt zentral im Herzen des Fränkischen Seenlandes, eingebettet zwischen Schwäbischer und Fränkischer Rezat und ist umgeben von einer hügeligen, waldreichen Umgebung. Ein idyllisches Zentrum, reizvolle Fachwerk- und Sandsteinbauten, Wasserwege, Brücken und Stege machen aus Geoergensgmünd einen reizvollen Ort von immer wachsender Beliebtheit. Dank einer Vielzahl an Einkaufsmöglichkeiten für den täglichen Bedarf, Ärzten, Kindergärten und Schulen sowie ansässige Firmen hat der Ort eine hervorragende Infrastruktur. Ferner bietet die Nähe zu den Fränkischen Seen eine reiche Palette an Freizeitmöglichkeiten für Jung und Alt.Georgensgmünd hat eine hervorragende Verkehrsanbindung, sei es per Auto oder mit der DB.Über die B2 erreichen Sie die Autobahnanbindungen zur A9 und A6. Die Stadt Nürnberg erreichen Sie über die B2 in ca. 30 Minuten Fahrtzeit.Mit der DB-Regio haben sie direkte Anbindung an die Strecken Nürnberg-Treuchtlingen-München.
